Airbag Help #2
After reading the previous tread on airbag codes, I have also been getting a code but it is 51. Does anyone know what this one could be? The most I could find is "Diagnostic-monitor-internal-thermal-fuse-open".
Any help would be appreciated.
Thanks
Any help would be appreciated.
Thanks

Comments
Thanks,
Ryan
Rare_92
You just need to watch the airbag light blink. Count the number of flashes until it pauses, then count again until the next long pause.
Mine flashed 5 times, paused flashed once, and then paused for a longer time. Then it started all over again.
Ken
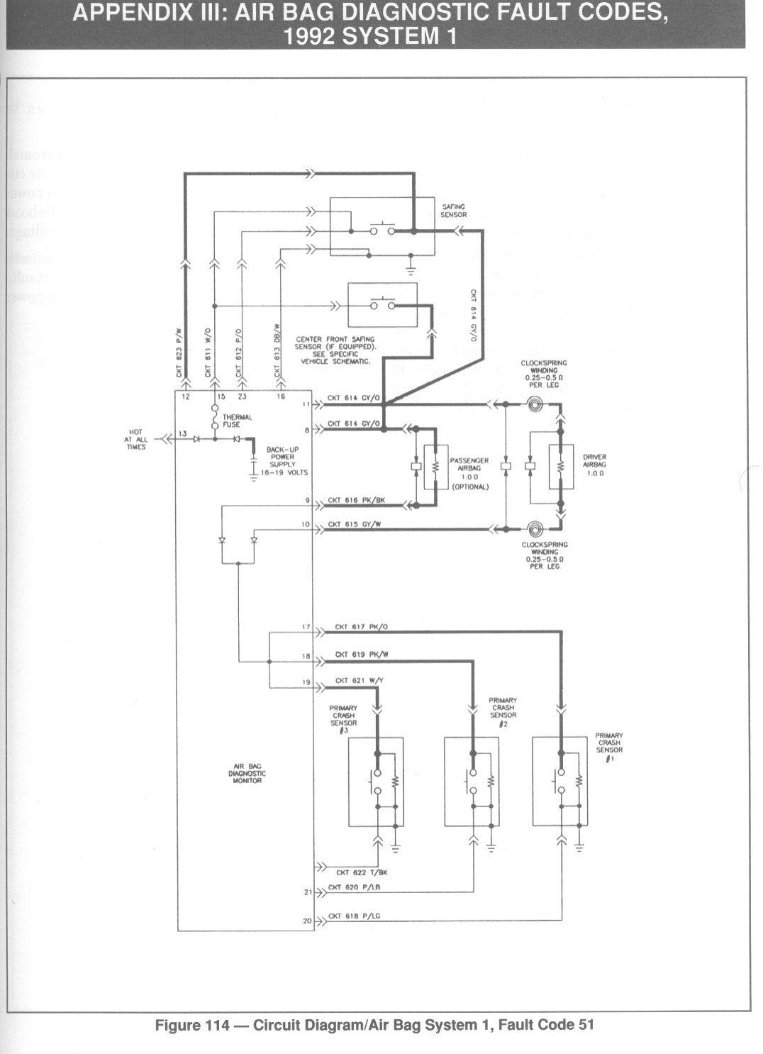
Description:
NOTE: The microprocessor inside the diagnostic monitor controls the internal thermal fuse. This fuse is not serviceable. The microprocessor will open the thermal fuse whenever a short is detected in the deployment circuits. The thermal fuse does NOT open because of excessive current flowing through it. DO NOT attempt to jumper out the thermal fuse with a circuit breaker or any other type of fuse.
NOTE: DO NOT install a new diagnostic monitor until the short has been located and corrected. If a short to ground has not been located and corrected, then the short to ground is intermittent and IS NOT PRESENT AT THIS TIME. If you install a new diagnostic monitor while there is an intermittent short in the system, the new diagnostic monitor will also open its thermal fuse and require repeat repairs.
The diagnostic monitor measures the diagnostic voltages on the monitor connector pins. When certain air bag deployment wires are shorted to ground (heavy lines illustrated in Figure 114 ), the system may become unstable to unwarranted air bag deployment. The diagnostic monitor prevents this by detecting shorts to ground on any of these circuits and opening the thermal fuse. Opening this fuse removes all power (battery and and backup power) from the air bag deployment circuits. While the short to ground exits, the monitor will flash a Fault Code 13. If the short to ground is intermittent and temporarily corrects itself, the diagnostic monitor will flash a Fault Code 51. Note that if the short to ground returns, the diagnostic monitor will revert to the higher priority Fault Code 13.
If the AIR BAG readiness lamp is flashing a Fault Code 51 and a short to ground has not been serviced, this means that an intermittent short to ground exists in the air bag system. The diagnostic monitor will eventually have to be replaced but only after a visual inspection leads to the repair of a short to ground in the wiring harness.
The following service tips may help you to find intermittent shorts to ground:
Inspect wiring and harness in the areas where they pass through or are located next to metal components (i.e. engine compartment bulkhead, body sheet metal, component mounting brackets, etc.).
PINPOINT TEST C1: FAULT INDICATION--AIR BAG INDICATOR FLASHES FAULT CODE
51--PROBABLE FAULT--LOSS OF BATTERY POWER TO AIR BAG FIRING CIRCUIT
C1 DEACTIVATE SYSTEM
o Deactivate system.
o Disconnect diagnostic monitor.
o Measure voltage from diagnostic monitor connector Pin 13 (+)
(Circuit 937, R/W) to PIn 2 (-) (57, BK).
o Is voltage greater than 10 volts?
Yes
REPLACE diagnostic monitor. VERIFY system. REACTIVATE system.
No
GO to .
PINPOINT TEST C2: FAULT INDICATION--AIR BAG INDICATOR FLASHES FAULT CODE
51--PROBABLE FAULT--LOSS OF BATTERY POWER TO AIR BAG FIRING CIRCUIT
C2 CHECK INSTRUMENT PANEL FUSE
o Check instrument panel fuse No. 7, 15 amp.
o Is fuse open?
Yes
GO to .
No
GO to .
PINPOINT TEST C3: FAULT INDICATION--AIR BAG INDICATOR FLASHES FAULT CODE
51--PROBABLE FAULT--LOSS OF BATTERY POWER TO AIR BAG FIRING CIRCUIT
C3 CHECK FOR SHORT TO GROUND IN CIRCUIT 937 (R/W)
o Measure resistance from diagnostic monitor connector Pin 13 (Circuit
937, R/W) to ground.
o Is resistance less than 10 ohms?
Yes
LOCATE and SERVICE short to ground in Circuit 937 (R/W). REPLACE
open fuse. RECONNECT system. VERIFY system. REACTIVATE system.
No
GO to .
PINPOINT TEST C4: FAULT INDICATION--AIR BAG INDICATOR FLASHES FAULT CODE
51--PROBABLE FAULT--LOSS OF BATTERY POWER TO AIR BAG FIRING CIRCUIT
C4 CHECK FOR SHORT TO GROUND IN CIRCUIT 611 (W/O)
o Measure resistance from diagnostic monitor connector Pin 15 (Circuit
611, W/O) to ground.
o Is resistance less than 10 ohms?
Yes
GO to .
No
GO to .
PINPOINT TEST C5: FAULT INDICATION--AIR BAG INDICATOR FLASHES FAULT CODE
51--PROBABLE FAULT--LOSS OF BATTERY POWER TO AIR BAG FIRING CIRCUIT
C5 CHECK FOR SHORT TO GROUND IN LH B-PILLAR PANEL SAFING SENSOR
o Disconnect LH B-pillar safing sensor.
o Measure resistance from diagnostic monitor connector Pin 15 (Circuit
612, P/O) to ground.
o Is resistance less than 10 ohms?
Yes
LOCATE and SERVICE short to ground in Circuit 611 (W/O). REPLACE
open fuse. RECONNECT system. VERIFY system. REACTIVATE system.
No
GO to .
PINPOINT TEST C6: FAULT INDICATION--AIR BAG INDICATOR FLASHES FAULT CODE
51--PROBABLE FAULT--LOSS OF BATTERY POWER TO AIR BAG FIRING CIRCUIT
C6 CHECK FOR SHORT TO GROUND IN CIRCUIT 612 (P/O)
o Measure resistance from diagnostic monitor connector Pin 23 (Circuit
612, P/O) to ground.
o Is resistance less than 10 ohms?
Yes
LOCATE and SERVICE short to ground in Circuit 612 (P/O). REPLACE
open fuse. RECONNECT system. VERIFY system. REACTIVATE system.
No
GO to .
PINPOINT TEST C7: FAULT INDICATION--AIR BAG INDICATOR FLASHES FAULT CODE
51--PROBABLE FAULT--LOSS OF BATTERY POWER TO AIR BAG FIRING CIRCUIT
C7 VERIFY SHORT TO GROUND IN LH B-PILLAR SAFING SENSOR
o Measure resistance from LH B-pillar safing sensor connector Circuit
611 (W/O) and Circuit 612 (P/O) to ground.
o Is resistance less than 10 ohms for either circuit?
Yes
REPLACE LH B-pillar safing sensor. REPLACE open fuse. RECONNECT
system. VERIFY system. REACTIVATE system.
No
INSPECT for crossed wires at LH B-pillar safing sensor connector
and diagnostic monitor connector. SERVICE Circuit 611 (W/O)
and/or Circuit 612 (P/O). REPLACE open fuse/fusible link.
REACTIVATE system.
PINPOINT TEST C8: FAULT INDICATION--AIR BAG INDICATOR FLASHES FAULT CODE
51--PROBABLE FAULT--LOSS OF BATTERY POWER TO AIR BAG FIRING CIRCUIT
C8 CHECK FOR INTERMITTENT SHORT TO GROUND
o Replace open fuse.
o Reconnect diagnostic monitor.
o Did fuse open again?
Yes
REPLACE Diagnostic monitor. REPLACE open fuse. VERIFY system.
REACTIVATE system.
No
INSPECT intermittent short to ground in Circuits 937 (R/W), 611
(W/O) and 612 (P/O). SERVICE circuits as required. RECONNECT
system. VERIFY system. REACTIVATE system.
PINPOINT TEST C9: FAULT INDICATION--AIR BAG INDICATOR FLASHES FAULT CODE
51--PROBABLE FAULT--LOSS OF BATTERY POWER TO AIR BAG FIRING CIRCUIT
C9 CHECK FOR PROPER BATTERY VOLTAGE
o Measure voltage of vehicle battery.
o Is voltage less than 10 volts?
Yes
RECHARGE vehicle battery. RECONNECT system. VERIFY system.
REACTIVATE system.
No
LOCATE and SERVICE open in Circuit(s) 937 (R/W) and/or 38 (BK/O).
RECONNECT system. VERIFY system. REACTIVATE system.
Got to start soomewhere though. Again, thanks for posting the dtail of my issue.
Ken